


Lot 5 Summit Lakeshore, ON N0R 1A7
Description
25022501
Single-Family Home
2 Storey
Essex County
Listed By
WINDSOR-ESSEX COUNTY
Dernière vérification Nov 5 2025 à 6:44 AM EST
- Salles de bains: 3
- Salle d’eau: 1
- Appliances :
- Misc Features : Pantry
- 62 - Monarch Meadows/Heritage Garden/Willowwood
- Playground Nearby
- Cheminée: Direct Vent Gas
- Foundation: Brick
- Central Air Conditioning
- Forced Air
- Furnace
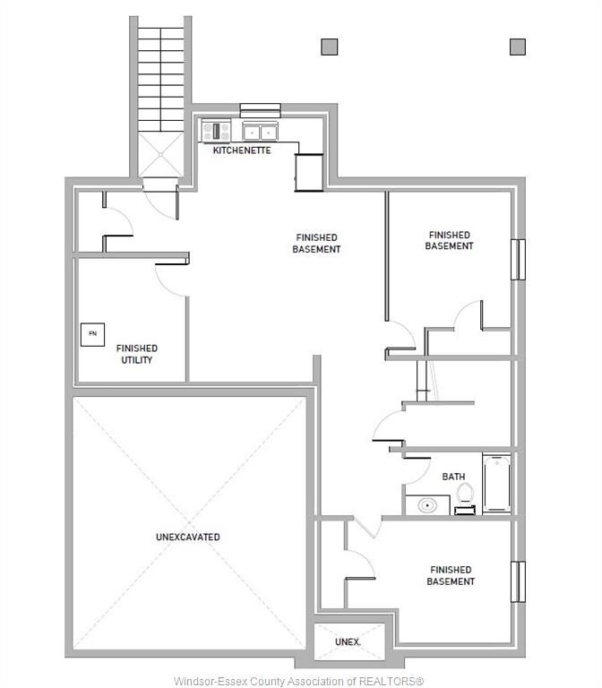
- Full Unfinished
- Ceramic or Porcelain
- Hardwood or Engineered Hrwd
- Concrete/Stucco
- Toit: Asphalt Shingle
- Utilities: Connected
- Sewer: Sanitary Connected
- Fuel: Natural Gas
- Double Garage
- Inside Entry
- 2
THIS WELL-APPOINTED HOME FEATURES 4 BEDROOMS AND 3.5 BATHROOMS, INCLUDING TWO PRIVATE ENSUITES, MAKING IT IDEAL FOR GROWING FAMILIES OR MULTI-GENERATIONAL LIVING. THE MAIN FLOOR OFFERS A BRIGHT, OPEN-CONCEPT LAYOUT WITH A FUNCTIONAL KITCHEN, GENEROUS LIVING AND DINING AREAS, AND A CONVENIENT MAIN-FLOOR POWDER ROOM.
A DOUBLE CAR GARAGE AND FULL UNFINISHED BASEMENT PROVIDE PLENTY OF STORAGE AND FUTURE DEVELOPMENT POTENTIAL — WHETHER YOU'RE PLANNING A REC ROOM, HOME GYM, OR EXTRA BEDROOMS.
BUILT WITH MAPLE LEAF HOMES’ TRUSTED QUALITY AND ATTENTION TO DETAIL, AND THERE’S STILL TIME TO SELECT YOUR FINISHES, ALLOWING YOU TO PERSONALIZE EVERYTHING FROM FLOORING TO CABINETRY AND FIXTURES.
LOCATED JUST MINUTES FROM SCHOOLS, PARKS, TRAILS, LAKESHORE RECREATION COMPLEX, BELLE RIVER MARINA, AND HWY 401. A FANTASTIC OPPORTUNITY TO BUILD YOUR DREAM HOME IN A FAMILY-FRIENDLY, GROWING COMMUNITY.